
萨尔布吕肯幼儿园规划的特殊之处在于,它是一栋为儿童设计的建筑物。这听起来很简单,但是这样的任务始终是一个挑战,因为在设计和施工期间您无法与实际使用者进行协调沟通。因此,这意味着再次让自己穿上孩子的鞋子回到儿童时光,并在设计房间时保持儿童的视线。这是非常令人兴奋的,因为孩子们自然不会在DIN标准、行政法规等方面浪费任何想法,而我们作为建筑师的要求则是不要让这些想法脱颖而出。

因此,我们的目标是创建一个每个人都能感到欢乐的地方。一个可以为各种体验提供空间的地方,人们可以在其中欢笑,唱歌和做梦。

幼儿园位于特殊的城市环境中:战后的典型居住区,建于1960年代的绿地上,带有大型公寓楼,有各种各样的社会问题。对于居住在那里的人们来说,将一个新的幼儿园整合到这个定居点是一个正确和良好的信号。


新建筑物必须集成到现有规划中,而不能对其产生额外的影响。它必须为未来树立一个标志,同时又要强大到足以与周围环境互动。



因此,我们会为幼儿园精心选择新的天然材料,并实施木制模块化结构。




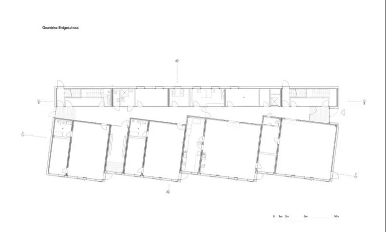
在混凝土板上,仅使用木材作为结构和设计材料。这既体现了室内空间又体现了建筑的氛围。尤其值得一提的是,尽管模块设计很严格,但平面图却偏离了正交网格。通过略微旋转和偏移模块,建筑以俏皮的优雅向外部开放。



建筑图纸



